Не упусти свой шанс! Последние акции от застройщиков  ▼

Продается 2-комнатная квартира, Косинское ш., 2

11 200 000 Р

Балашиха г. (Балашиха гор. округ)

Косинское ш.2

Дата публикации: 5 марта 2026

Дата обновления: 10 марта 2026

Телефон: 
Показать телефон

+7 (968) 709-07-21

От застройщика: 598 квартир в продаже

Этаж: 10 / 22

Общая: 58,3 м2

Жилая: 24,5 м2

Кухня: 17,9 м2

Комнаты: не указано

Балкон/лоджия: балкон

Лифт: не указано

Окна: окна во двор и на улицу

Санузел: совмещенный

Мусоропровод: не указано

Состояние квартиры: евроремонт

Тип дома: монолитно-кирпичный

Год постройки: 2021

Территория: огороженная

Парковка: есть

Статус сделки: продажа

Сделка: альтернатива

Собственность: не указано

Основание права собственности: не указано

Описание

Прекрасная 2-к. квартира в ЖК Новоград Павлино! Без обременений!

Вашему вниманию представляется евро 3к.- квартира распашонка! Окна на две стороны света!

Характеристики:
- Площадь 58,3 квадратных метров (без учета балкона);
- 2 просторные гардеробные;
- Лоджия из комнаты;
- Совмещенный санузел;
- Распашонка- окна и во двор, и на улицу.
- На этаже всего 4 квартиры.

Мебель и техника по договоренности.

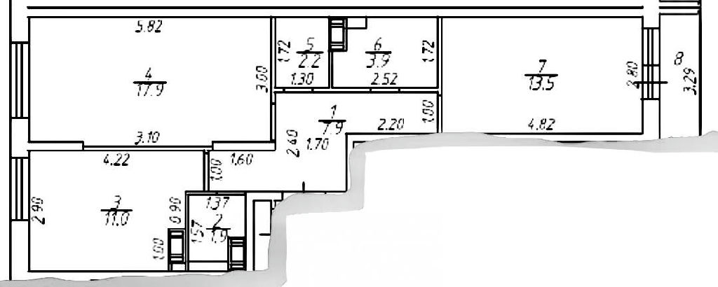
Планировка:
- Просторная кухня-гостиная 17,9 м2;
- Светлая комната 11 м2;
- Уютная спальная комната 13,5 м2;
- Лоджия их комнаты 1,5 м2;
- Санузел 3,9 м2;
- 2 гардеробные 1,9 + 2,2 м2.

Преимущества:
- До метро Некрасовка 15 минут транспортом!
- До МЦД Ольгино 15 минут транспортом!
- На этаже всего 4 квартиры, все заселены.
- Рядом 2 детских сада и школа.
- Вокруг множество локаций как для спокойного самостоятельного отдыха, так и для встречи с друзьями.

Выгода:
- Быстрый выход на сделку!
- Без обременений!
- Покупали за наличные!
- Помощь в одобрении ипотеки на выгодных условиях! СТАВКА ОТ 14.99%!

Оперативные показы. Звоните прямо сейчас!
Документы проверены юристом и готовы к покупке. Возможно приобретение в ипотеку!

Агентство Инфинити гарантирует подготовку полного пакета документов и юридическое сопровождение сделки.
Все сделки агентства застрахованы. Подбор и помощь в покупке Новостройки- бесплатно!Номер объекта: #6/546816/23361 Торг.

Квартира на карте

ПанорамыКарта
Спецпредложения
Добавить объявление